設計師:邵澤陽(河西旗艦店 高級設計師)
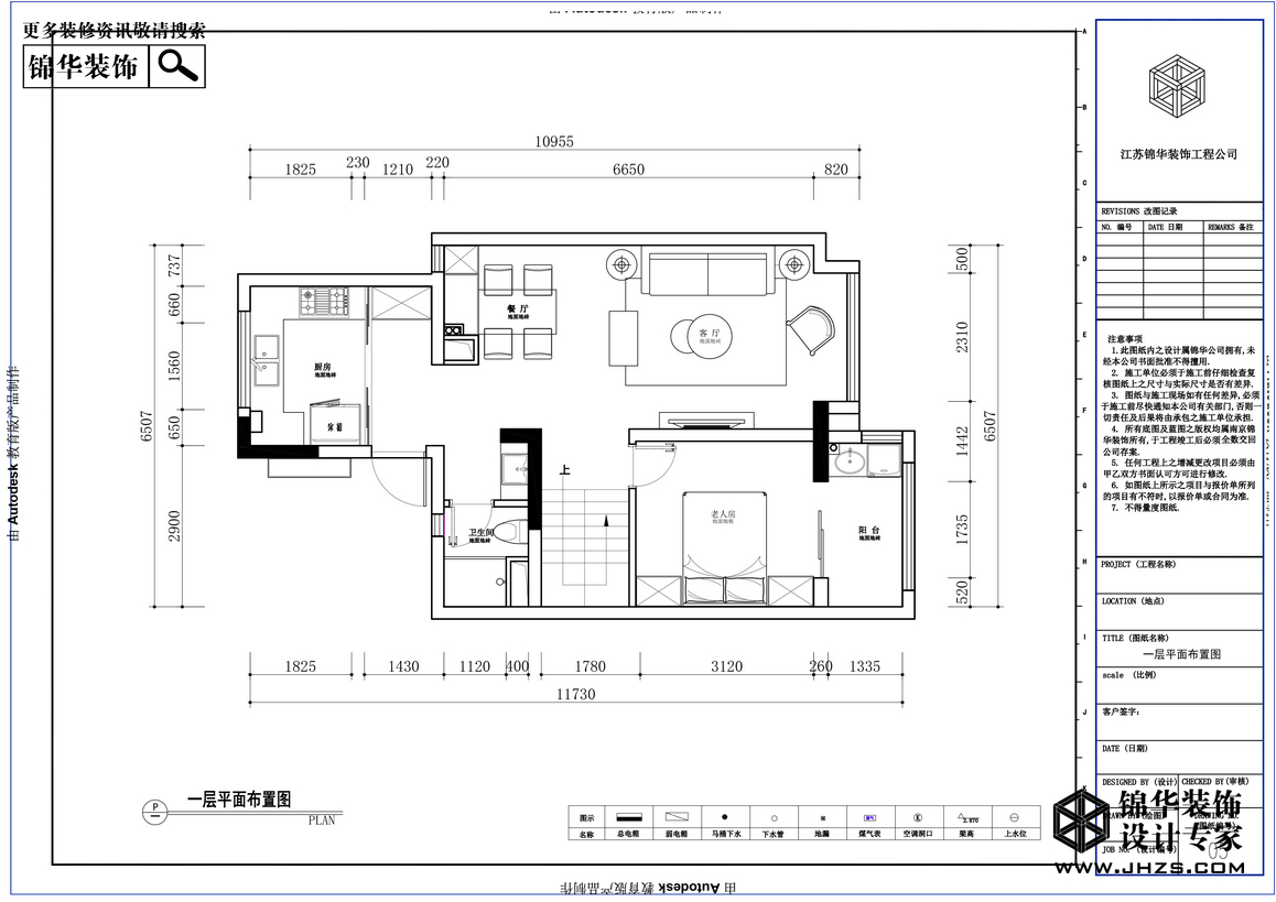
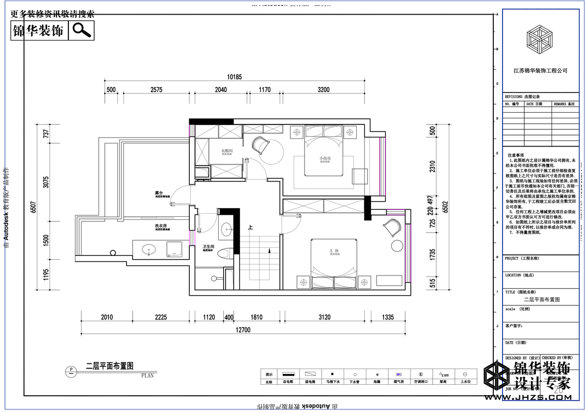
戶型詳情:保利云禧132平米 現代風格
案例說明
本戶型采用現代簡約的設計風格,以黑白灰為基調,搭配簡約木作,盡顯時尚簡約之美。整屋吊頂線條流暢簡單,較大的空間留白,以減少視覺負擔。室內布置按功能進行分區,改主衛為衣帽間,將儲物空間最大化??托l干濕分離,方便、清潔。
平面布置圖↓
平面布置圖↓
效果圖↓
效果圖↓
效果圖↓
效果圖↓
想了解更多保利云禧戶型資料么?
錦華裝飾準備了保利云禧各戶型全套設計方案、工程量報價、參考效果圖、主材搭配方案.歡迎您和網絡客服取得聯系,預約來店面詳細溝通.錦華裝飾,設計專家!.
江蘇家裝示范品牌
代表地區優秀設計聲音
集25年工程管理經驗之大成
省時、省力更省心
| 走進錦華 | 設計團隊 | 作品列表 | 戶型解析 | 裝修百科 |
關注錦華公眾號
|
瀏覽手機官網 |
全國熱線 025 86550815 |
||||||||||
| 新聞列表 | 錦華文化 | 堂杰國際設計 | 1865旗艦店 | 極簡 | 中古 | 秦淮金茂府 | 常見問題 | ||||||||||
| 全國分公司 | 錦華招聘 | 河西旗艦店 | 鼓北旗艦店 | 法式 | |||||||||||||
| 錦華簡介 | 聯系我們 | 城東旗艦店 | 江寧旗艦店 | 歐式古典 | 北歐 | 中交錦方 | |||||||||||
| 資質榮譽 | 法律聲明 | 江北旗艦店 | 江浦店 | 美式田園 | 新古典 | 溧水玖宸府 | |||||||||||