設計師:郭建偉(鼓樓旗艦店 首席設計師)
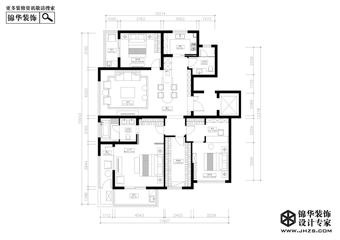
戶型詳情:錦繡濱江花園175平米 現代簡約風格
案例說明
在空間規劃上,遵循大空間的多功能性,盡量保持原有客餐廳的開放性,中軸線調整偏移,保證入戶門廳的通暢性。主臥室在原有基礎上擴大面積,讓主人有更佳的景觀觀賞角度。次臥室更改衛生間為開放式書房,增加了小主人的多功能空間,空間更加深動。在設計風格上,現代簡約時尚。大塊面積的用材用色,保證現代簡約的特性。色彩上以原木自有的色彩為主,配以高光烤漆白色為輔,而使空間不至于過于壓抑而失去家的溫馨,同時彰顯了主人的個性。
優缺點分析
優點:
采光通風優秀,公共空間規整,視野開闊
缺點:
各區域空間略顯局促
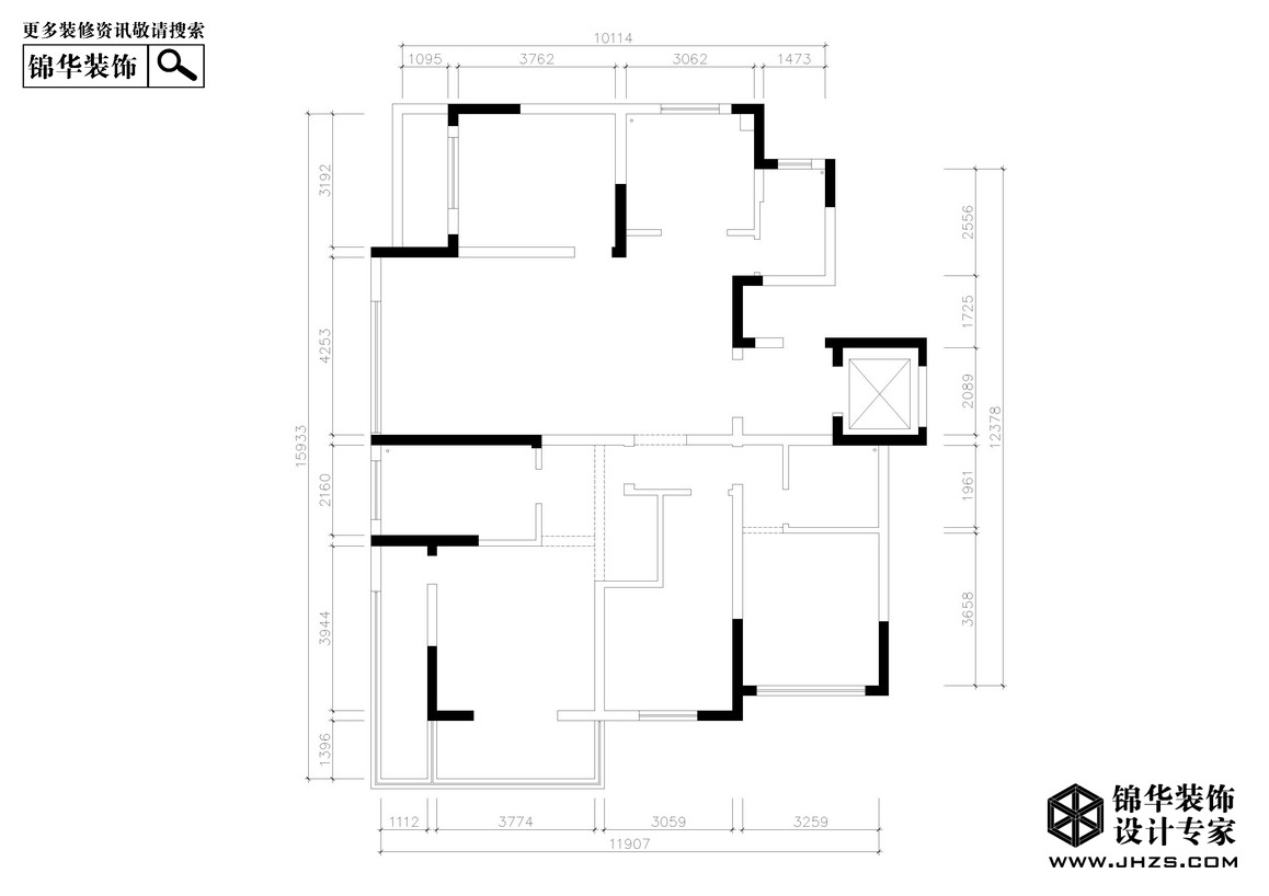
原始結構圖↓
平面布置圖↓
鳥瞰圖↓
俯視圖↓
客戶效果圖↓
客戶效果圖↓
客戶效果圖↓
想了解更多錦繡濱江花園戶型資料么?
錦華裝飾準備了錦繡濱江花園各戶型全套設計方案、工程量報價、參考效果圖、主材搭配方案.歡迎您和網絡客服取得聯系,預約來店面詳細溝通.錦華裝飾,設計專家!.
江蘇家裝示范品牌
代表地區優秀設計聲音
集28年工程管理經驗之大成
省時、省力更省心
| 走進錦華 | 設計團隊 | 作品列表 | 戶型解析 | 裝修百科 |
關注錦華公眾號
|
瀏覽手機官網 |
全國熱線 025 86550815 |
||||||||||
| 新聞列表 | 錦華文化 | 堂杰國際設計 | 1865旗艦店 | 極簡 | 中古 | 秦淮金茂府 | 常見問題 | ||||||||||
| 全國分公司 | 錦華招聘 | 河西旗艦店 | 鼓北旗艦店 | 法式 | |||||||||||||
| 錦華簡介 | 聯系我們 | 城東旗艦店 | 江寧旗艦店 | 歐式古典 | 北歐 | 中交錦方 | |||||||||||
| 資質榮譽 | 法律聲明 | 江北旗艦店 | 江浦店 | 美式田園 | 新古典 | 溧水玖宸府 | |||||||||||