設計師:周嶠(1865旗艦店 主任設計師)
戶型詳情:中垠紫金觀邸122平米 美式風格
案例說明
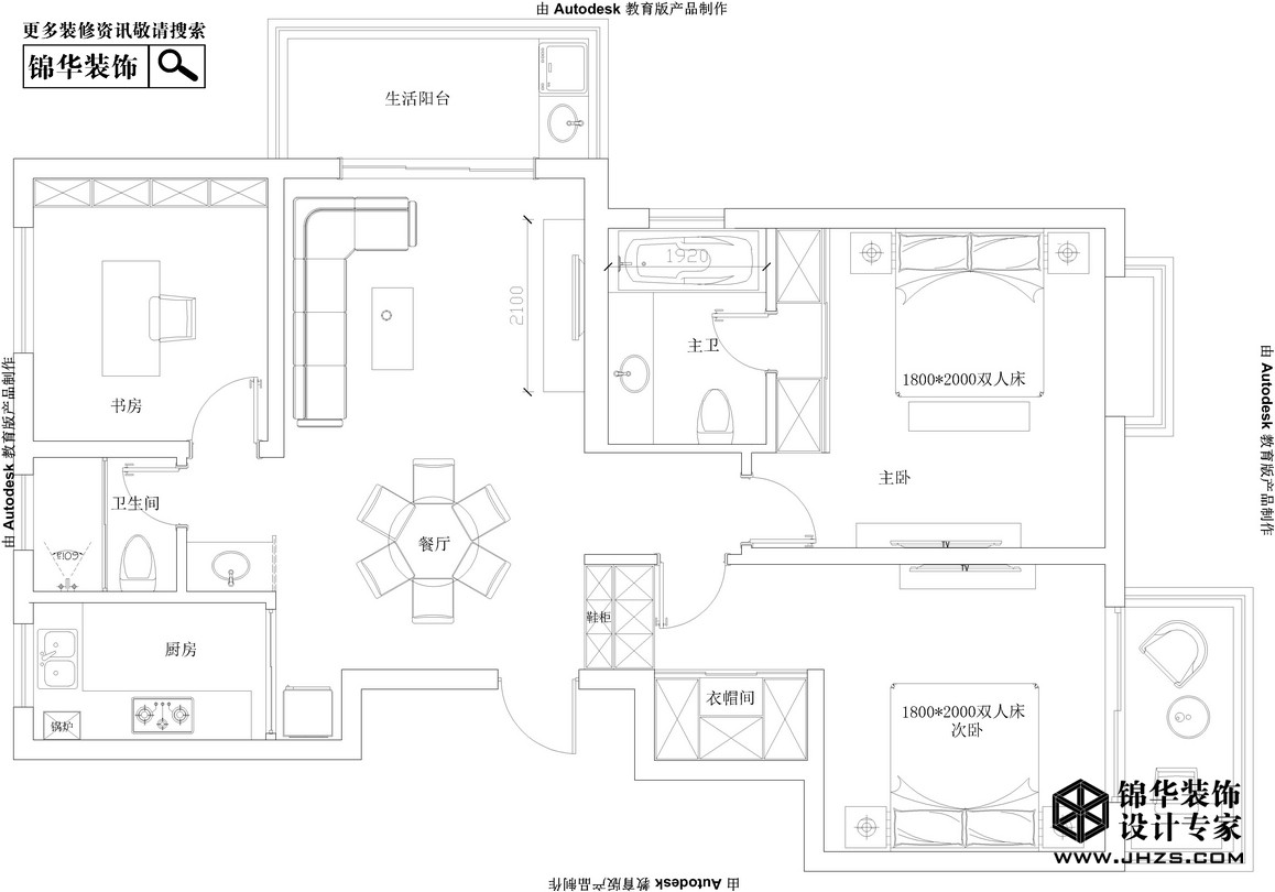
這是一個規整的并且功能齊全的房子,有三個臥室兩個衛生間還有獨立的衣帽間,只是廚房和客衛略小了些,總體我還是對這個戶型的實際比較滿意的。
我個人認為130平米以下的房子一般剛需的會比較多些,三代同堂或者一家三口。這個戶型我認為定位在現代簡約和簡美式會跟適合,精致顯空間,可以酷帥干凈明亮,可以清新舒適鮮色。雙陽臺可以觀景和生活功能分區獨立,東南的采光也是最佳的位子。在這里我沒有把所有空間都堆滿柜子,后期根據個人需要是可以再安排進去的。
優缺點分析
優點:有雙陽臺且陽臺都相對較大,采光很好。主臥和次臥空間富足。有兩個衛生間。有足夠的空間做一個小的衣帽間。
缺點:兩個衛生間都較小,廚房空間有限,有很多拐很難處理,沒有空間放鞋柜,沒有組偶的空間放冰箱。
原始結構圖↓
平面布置圖↓
鳥瞰圖↓
俯視圖↓
效果圖↓
效果圖↓
效果圖↓
想了解更多中垠紫金觀邸戶型資料么?
錦華裝飾準備了中垠紫金觀邸各戶型全套設計方案、工程量報價、參考效果圖、主材搭配方案.歡迎您和網絡客服取得聯系,預約來店面詳細溝通.錦華裝飾,設計專家!.
江蘇家裝示范品牌
代表地區優秀設計聲音
集28年工程管理經驗之大成
省時、省力更省心
| 走進錦華 | 設計團隊 | 作品列表 | 戶型解析 | 裝修百科 |
關注錦華公眾號
|
瀏覽手機官網 |
全國熱線 025 86550815 |
||||||||||
| 新聞列表 | 錦華文化 | 堂杰國際設計 | 1865旗艦店 | 極簡 | 中古 | 秦淮金茂府 | 常見問題 | ||||||||||
| 全國分公司 | 錦華招聘 | 河西旗艦店 | 鼓北旗艦店 | 法式 | |||||||||||||
| 錦華簡介 | 聯系我們 | 城東旗艦店 | 江寧旗艦店 | 歐式古典 | 北歐 | 金基璟樾府 | |||||||||||
| 資質榮譽 | 法律聲明 | 江北旗艦店 | 江浦店 | 美式田園 | 新古典 | 中建翰林雅境 | |||||||||||